Công Ty Bất Động Sản Green House chuyên cho thuê mặt bằng khối đế tòa nhà văn phòng Victory Tower, Phú Mỹ Hưng, Quận 7 căn góc không lầu có 4 cửa ra vào, vị trí thuộc khu tài chính quốc tế Phú Mỹ Hưng, diện tích 261m2.
Thông tin mặt bằng tòa nhà văn phòng Victory Tower, Phú Mỹ Hưng cần cho thuê.
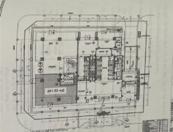
✔️ Diện tích: 261m2 (15x18m).
✔️ Xây dựng: 30 tầng.
✔️ Mặt bằng trệt, không có lầu.
✔️ Căn góc, tường bằng kính.
✔️ Có 4 cửa ra vào.
✔️ Layout mặt bằng đính kèm.
✔️ Vị trí: 12 Tân Trào, Tân Phú, Quận 7, Thành phố Hồ Chí Minh.
Giá cho thuê mặt bằng khối đế tòa nhà văn phòng Victory Tower, Quận 7: 180 triệu/tháng (bao VAT).
Thông Tin Nhận Tư Vấn Hoặc Ký Gửi Bất Động Sản:
☎️Hotline: 0907894503 (Viber | Zalo | Whatapp | kakaotalk | wechat…) Mr Hoà Lê GreenHouse xem 24/7 và cập nhật giá tốt nhất
🌐https://greenhouseagency.com.vn
🎞https://youtube.com/c/GreenHouseAgency
📡https://www.facebook.com/CTY.GREEN.HOUSE/
TIỆN ÍCH TẠI PHÚ MỸ HƯNG
Hệ thống tiện ích nội khu tại Phú Mỹ Hưng đa dạng, đồng bộ và đạt chuẩn quốc tế, đáp ứng mọi nhu cầu của cư dân ở nhiều độ tuổi. Trung tâm thương mại Crescent Mall, khu Hồ Bán Nguyệt với cầu Ánh Sao nổi tiếng, hệ thống nhà hàng – café – bar ven hồ, các tuyến phố mua sắm hiện đại tại khu thương mại tài chính, và hàng loạt siêu thị – tiện ích như Lotte Mart, SC VivoCity, Coopmart đều nằm trong phạm vi vài phút di chuyển. Các tiện ích giáo dục nội khu là một trong những điểm mạnh vượt trội của Phú Mỹ Hưng, bao gồm hệ thống các trường quốc tế danh tiếng như SSIS (Saigon South International School), trường Quốc tế Canada (CIS), Trường Quốc tế Nhật Bản, Trường Hàn Quốc, Trường Đài Loan, cùng các cơ sở giáo dục từ mầm non đến đại học đạt tiêu chuẩn cao. Ngoài ra, hệ thống y tế chuẩn quốc tế phục vụ cư dân 24/7, nổi bật như Bệnh viện FV, Bệnh viện Tim Tâm Đức, phòng khám Maple Healthcare… mang đến sự an tâm tuyệt đối trong chăm sóc sức khỏe.
Không chỉ dừng lại ở đó, cư dân tại Phú Mỹ Hưng còn được thừa hưởng mạng lưới tiện ích ngoại khu phong phú nhờ nằm giữa trung tâm phát triển của khu Nam Sài Gòn. Trong phạm vi vài phút di chuyển, cư dân dễ dàng tiếp cận KĐT Mũi Đèn Đỏ, khu dân cư Him Lam Kênh Tẻ, trường Đại học RMIT, Đại học Tôn Đức Thắng, khu vực Phú Thuận – nơi tập trung các dịch vụ thương mại sôi động; hay kết nối nhanh đến Quận 2, Quận 9 và các khu đô thị mới tại Thủ Đức thông qua cầu Phú Mỹ – Vành đai 2. Hệ thống công viên ven sông dọc trục Nguyễn Văn Linh và khu vực rạch tự nhiên xung quanh tạo nên không khí mát mẻ, thích hợp cho các hoạt động thể thao ngoài trời như chạy bộ, đạp xe, yoga hay các sinh hoạt cộng đồng của cư dân.

TỔNG QUAN KHU ĐÔ THỊ PHÚ MỸ HƯNG
Khu đô thị Phú Mỹ Hưng thuộc Quận 7, toạ lạc ở phía Nam TP. Hồ Chí Minh, do Công ty TNHH Phát triển Phú Mỹ Hưng quản lý. Từng là một khu đầm lầy hoang vu, đô thị Phú Mỹ Hưng đã chuyển mình trở thành một khu đô thị kiểu mẩu bậc nhất Việt Nam, là nơi tập trung sinh sống của những người có thu nhập cao, tri thức, là một trung tâm tài chính, thương mại, dịch vụ, công nghiệp, khoa học, văn hóa, giáo dục và giải trí.


#GreenHouse
Chia sẽ:












Đánh giá
Chưa có đánh giá nào.